8215 Hallau

Attraktive 4.5 Zimmer-Wohnung an ruhiger Lage

Referenz Nr. 2238

Eckdaten

Objektart Wohnung
Stockwerk 1. Obergeschoss
Zimmer 4.5
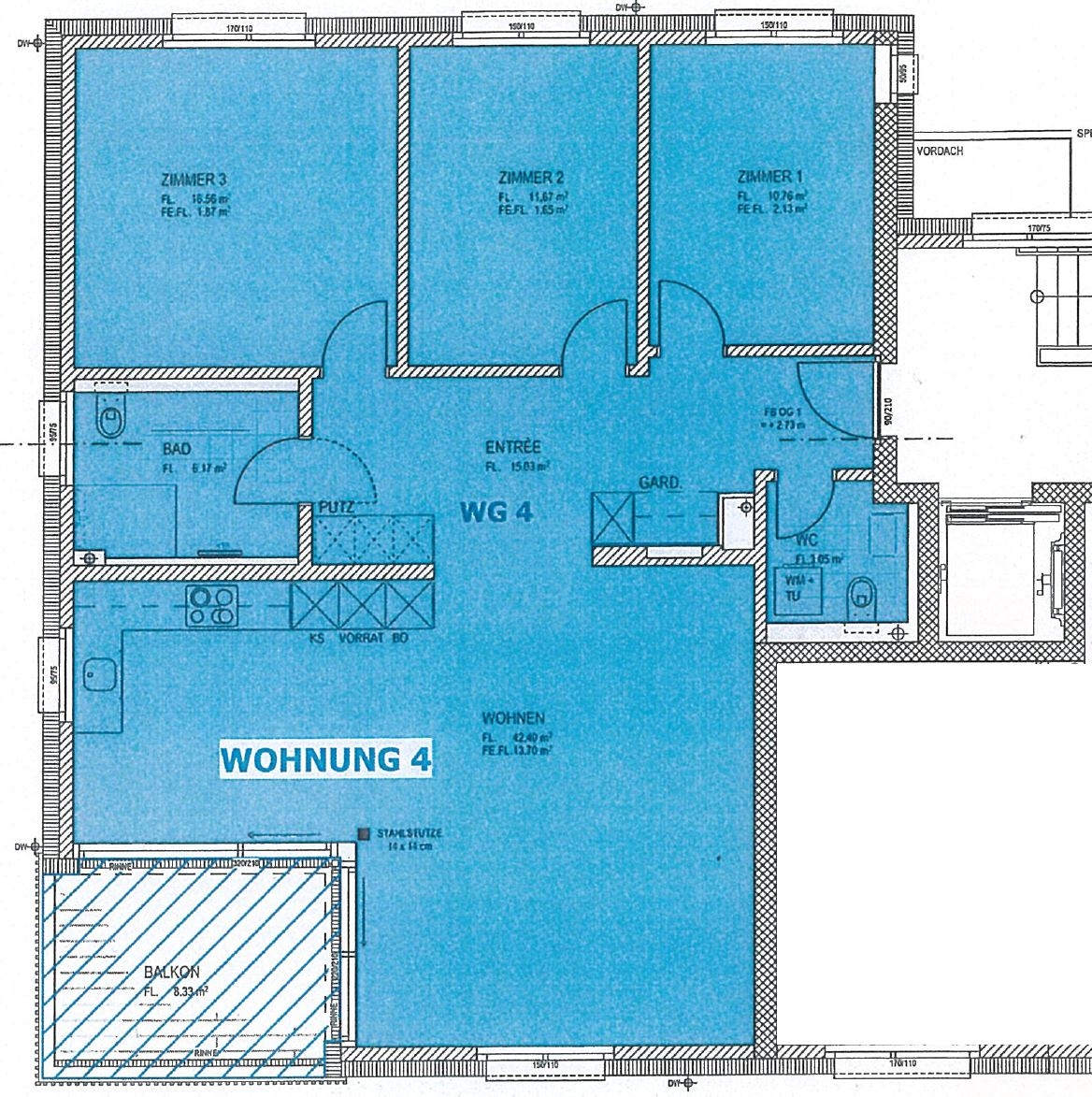
Wohnfläche 105 m²
Baujahr 2020
Verfügbar ab sofort

Finanzielles

Brutto-Miete CHF 2'150.-
Netto Miete 1'850 CHF
Nebenkosten 300 CHF

Attraktive 4.5 Zimmer-Wohnung an ruhiger Lage

Verfügbar ab 01.03.2026 oder nach Vereinbarung.

Diese attraktive Wohnung befindet sich am ruhigen Ortsrand von Hallau, direkt bei den idyllischen Rebbergen und bietet modernes Wohnen in naturnaher Umgebung.

Die im Jahr 2020 erbaute Liegenschaft überzeugt durch zeitgemässen Ausbaustandard und hohen Wohnkomfort. Auf 105.6 m² Wohnfläche erwartet Sie ein durchdachter Grundriss mit hellen, freundlichen Räumen und grosszügigem Wohn- und Essbereich.

Die moderne Küche ist hochwertig ausgestattet mit Induktionsherd, Backofen und Steamer und lässt keine Wünsche offen.

Der Balkon mit 8.3 m² lädt zum Entspannen und Geniessen der ruhigen Lage ein. Praktisch und komfortabel: Waschmaschine und Wäschetrockner befinden sich direkt in der Wohnung. Zusätzlich steht ein Kellerabteil mit 8.8 m² zur Verfügung.

Ein Parkplatz in der Einstellhalle ist im Mietpreis inbegriffen.

Highlights auf einen Blick
- Ruhige Lage am Ortsrand von Hallau
- Direkte Nähe zu den Rebbergen
- Neubau / moderne Liegenschaft (Baujahr 2020)
- 105.6 m² Wohnfläche
- Balkon mit 8.3 m²
- Moderne Küche mit Induktion, Backofen & Steamer
- Eigene Waschmaschine & Wäschetrockner in der Wohnung
- Elektrische Storen in allen Räumen
- Kellerabteil mit 8.8 m²
- Ein Einstellhallenplatz kann für CHF 100.- zur Wohnung dazu gemietet werden.

Diese Wohnung eignet sich ideal für Paare, Familien oder Personen, die grosszügiges und modernes Wohnen in ruhiger Umgebung schätzen.


Hat dieses Objekt Ihr Interesse geweckt? Gerne stehen wir Ihnen für weiterführende Informationen oder die Vereinbarung einer Besichtigung zur Verfügung. Wir freuen uns auf Ihre Kontaktaufnahme.

Ihr Team der Ritter Immobilien Treuhand AG - www.ritterimmobilien.ch

Zusätzliche Angaben

Balkon

Ihre Ansprechperson

Haben Sie Fragen zu diesem Objekt?

Gerne stehe ich Ihnen zur Verfügung.

Pascal Geyer
0041526321497
vermittlung@ritterimmobilien.ch

Factsheet

Hier finden Sie das Factsheet mit allen wichtigen Informationen zu diesem Objekt.

Download als Pdf
Einkaufen
ca. 0.8 km
Kindergarten
ca. 0.75 km
Primarschule
ca. 0.75 km
Oberstufe
ca. 0.75 km
Diese Objekte könnten Sie ebenfalls interessieren.